PROPERTY SEARCH
- Villa
- Property Type
- 4
- Bedrooms
- 3
- Bathrooms
- 559 m²
- Area Size
- 800 m²
- Land Area
Description
Ref: DP-66-MT.H-818
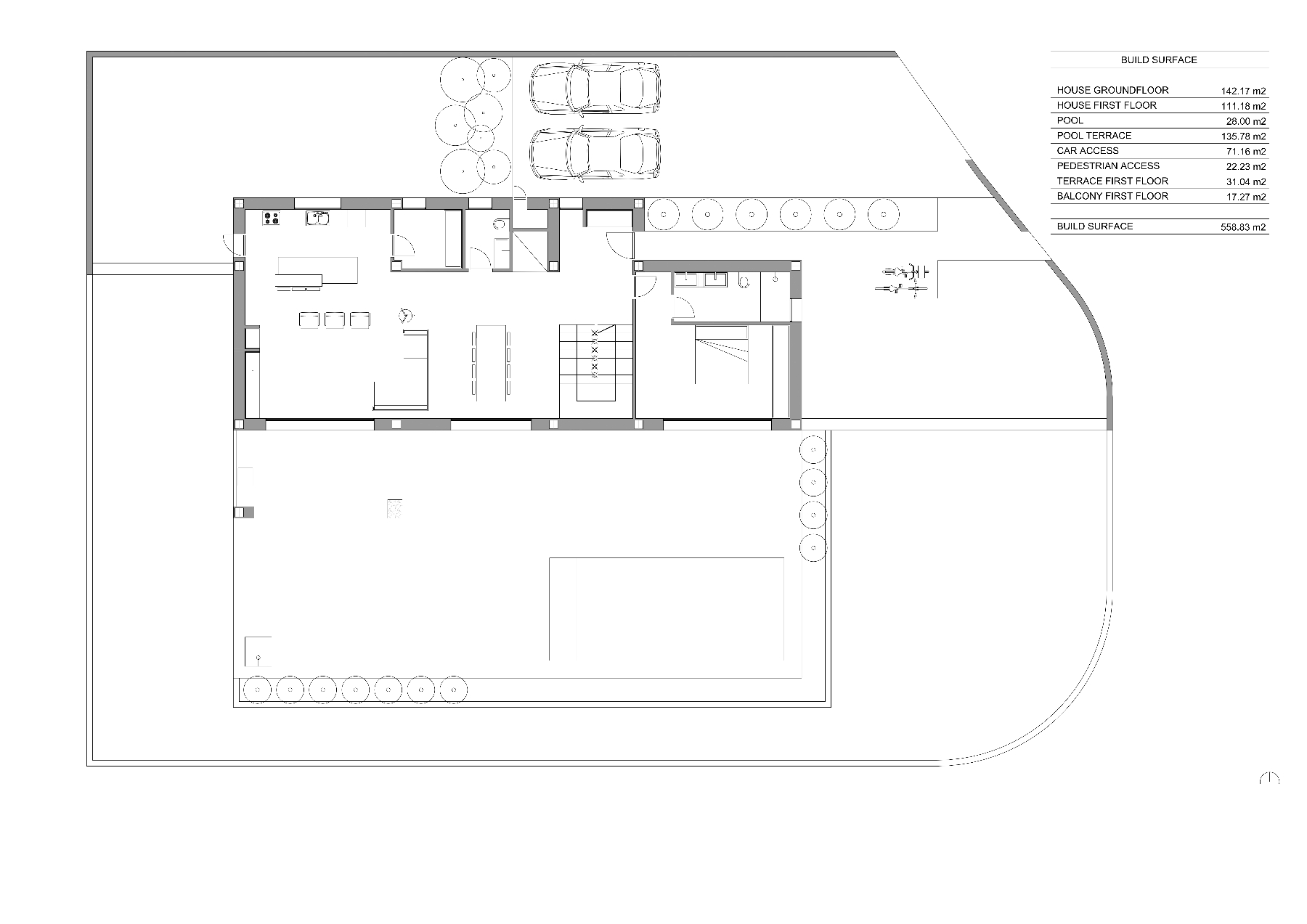
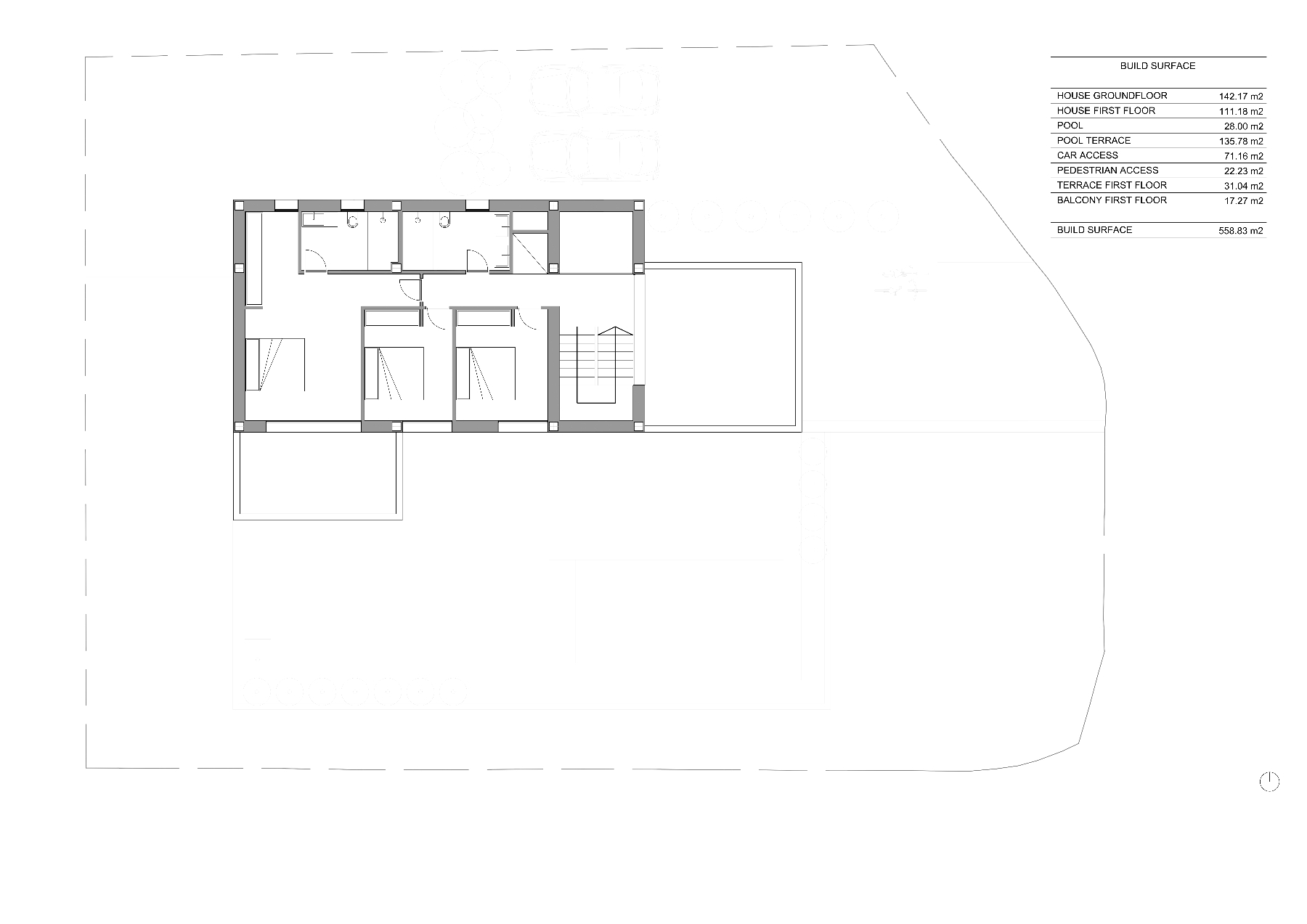
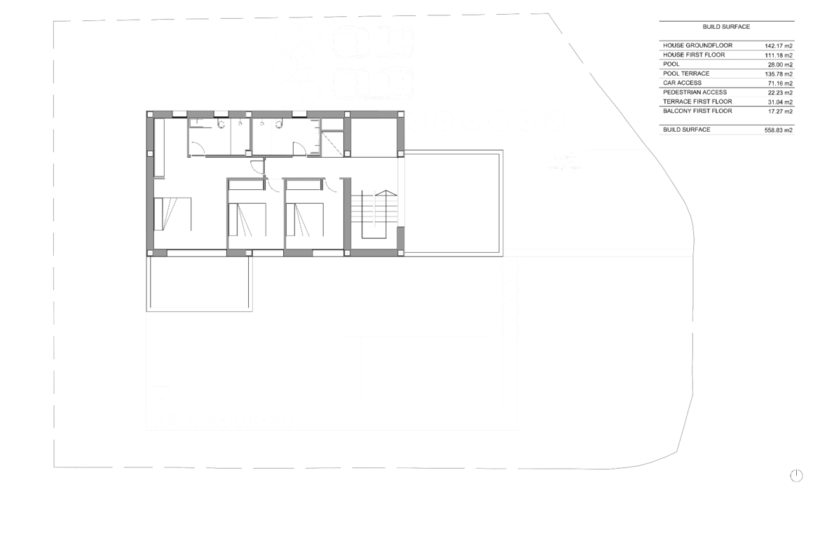
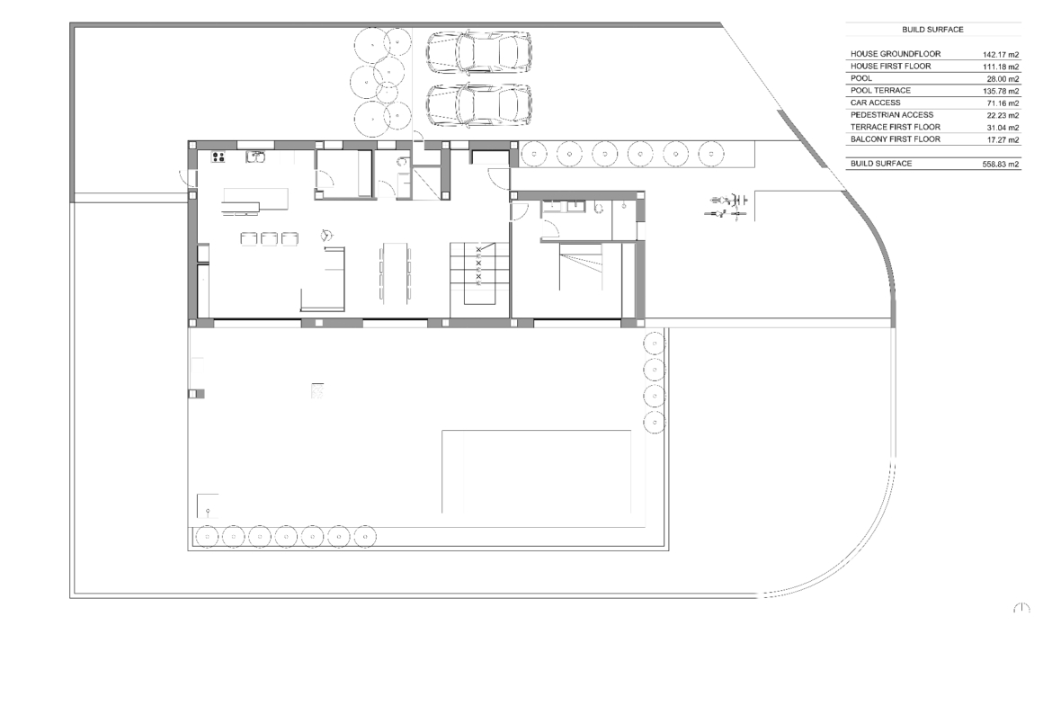
New build Ibiza-style villa for sale in Moraira (Benimeit) with swimming pool, 4 bedrooms, lift and valley views. Completion 2027. Modern villa Costa Blanca Spain. In the Benimeit district of Moraira, this new Ibiza villa (construction starts at the end of February 2026) will be built on a flat plot with unobstructed views. The villa combines functionality and comfort. Completion planned for May 2027. Description This Ibicenco consists of two floors and is designed so that you can live on the ground floor with extra sleeping space upstairs. On the ground floor, there is a spacious living-dining room with a fully equipped open kitchen. The living room is directly connected to the sun terrace and the swimming pool (5×10 m). There is also a laundry room, guest toilet and a large bedroom with en-suite bathroom and direct access to the pool terrace. An internal staircase or lift leads to the upper floor with a spacious master bedroom with en-suite bathroom and private terrace, plus two additional bedrooms sharing a third bathroom. Outside, the property has a partially covered terrace with summer kitchen and barbecue, flat landscaped garden and parking for two cars. The villa is equipped with air conditioning, ducted heating, double glazing and a solar-powered boiler for hot water. Details New build villa Moraira (planned completion May 2027)Ibiza-style architecture, modern and functional4 bedrooms, 3 bathrooms + guest toiletPrivate swimming pool 5×10 m and summer kitchenLift Solar energy for hot waterFlat plot with nice viewsAutomatic entrance gate + parking space for 2 carsWhy view this villa Acceptable waiting timeComfortable single-storey use possibleCentral location in Benimeit, MorairaIbiza styleGood investmentA luxurious, Ibiza-style villa for sale in Moraira in a prime location on the Costa Blanca North. Would you like to view the plot or find out more about this project? Contact one of our staff today. We are happy to help!
As a buyer you do not pay any commission with us, so make use of our more than 10 years of experience as a purchasing agent! Dream Properties International is a certified real estate agent, more information via this link. We have helped many customers over the years, check out our reviews here.
Details
-
Property ID DP-66-MT.H-818
-
Price €1.800.000
-
Property Size 559 m²
-
Land Area 800 m²
-
Bedrooms 4
-
Bathrooms 3
-
Property Status Resale
-
Property Type Villa
Approximate Location
Maps are for representative purposes only and do not provide an exact location. They indicate the nearest town to which the property is located. For full details, please enquire using the form provided.
Similar Listings
New build Villa for sale in Ciudad Quesada
DP-110-98926472-01 Ciudad Quesada, Alicante- Beds: 4
- Baths: 4
- 260 m²
- 467 m²
- Villa
New build Villa for sale in Cumbre del Sol
DP-110-88058869-02 Cumbre del Sol, Alicante- Beds: 4
- Baths: 5
- 459 m²
- 813 m²
- Villa
Similar Listings
New build Villa for sale in Ciudad Quesada
DP-110-98926472-01 Ciudad Quesada, Alicante- Beds: 4
- Baths: 4
- 260 m²
- 467 m²
- Villa
New build Villa for sale in Cumbre del Sol
DP-110-88058869-02 Cumbre del Sol, Alicante- Beds: 4
- Baths: 5
- 459 m²
- 813 m²
- Villa
- Dream Properties
Contact me











