PROPERTY SEARCH
- Home
- Costa Blanca
- Costa Blanca North
- Benissa
- Villa for sale in Benissa
Villa for sale in Benissa
- €1.495.000
- Villa
- Property Type
- 3
- Bedrooms
- 3
- Bathrooms
- 193 m²
- Area Size
- 1350 m²
- Land Area
Description
Ref: DP-40-4446BEN
Be enchanted by this stylish villa project with private pool, located in a modern residential area a stone's throw from the idyllic La Fustera beach.
This project combines contemporary design, high-quality finishes and an excellent location, making it an ideal choice for those looking for comfort and luxury on the Costa Blanca. The villa offers a smart layout spread over two floors.
On the first floor you will find a spacious and bright living-dining room, which thanks to large sliding windows gives direct access to the terrace and pool area. The modern open kitchen is fully integrated into the living space, making cooking and being together perfect. A sliding glass door leads to a cozy 38 m² patio, a peaceful place to relax or enjoy the outdoors. There is also a stylish guest toilet, adding to the comfort and functionality of this floor.
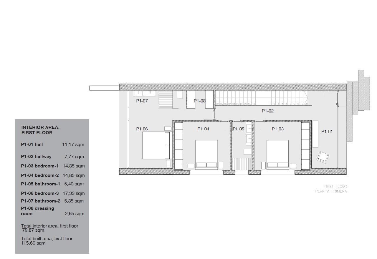
Upstairs is the master bedroom with its own en suite bathroom, a luxurious retreat to fully unwind. In addition to the master bedroom, there are two spacious double bedrooms that share a modern bathroom, ideal for guests or family members. The large windows in all bedrooms provide plenty of natural light and a connection to the surrounding nature.
The villa project is designed with attention to detail and use of high quality materials. All rooms are equipped with an efficient air conditioning system with independent temperature control, ensuring an optimal indoor climate. The double-glazed windows with thermal bridge break and porcelain floors - available in cement gray or beige - add to the modern and high-quality character of the home.
The location of this villa is simply perfect. The flat plot is located in a modern residential area with excellent infrastructure and larger than average plots, offering more privacy and space. Only 1.9 km away from the sandy beach La Fustera, you will enjoy a unique combination of tranquility and proximity to amenities, restaurants and recreation. This villa is a unique opportunity to invest in a modern dream home perfectly suited to Mediterranean living. With its clean lines, thoughtful design and beautiful location, this property offers everything you need for a luxurious and relaxing life on the Costa Blanca.
Contact us today for more information or to discover the possibilities of this special project!
As a buyer you do not pay any commission with us, so make use of our more than 10 years of experience as a purchasing agent! Dream Properties International is a certified real estate agent, more information via this link. We have helped many customers over the years, check out our reviews here.
Details
-
Property ID DP-40-4446BEN
-
Price €1.495.000
-
Property Size 193 m²
-
Land Area 1350 m²
-
Bedrooms 3
-
Bathrooms 3
-
Property Status New Build
-
Property Type Villa
Approximate Location
Maps are for representative purposes only and do not provide an exact location. They indicate the nearest town to which the property is located. For full details, please enquire using the form provided.
Similar Listings
Similar Listings
- Dream Properties
Contact me


















