PROPERTY SEARCH
- Home
- Costa Blanca
- Costa Blanca North
- Alcalali
- Villa for sale in Alcalali
Villa for sale in Alcalali
- €765.000
- Villa
- Property Type
- 3
- Bedrooms
- 2
- Bathrooms
- 419 m²
- Area Size
- 1021 m²
- Land Area
Description
Ref: DP-55-4599ALC/10535
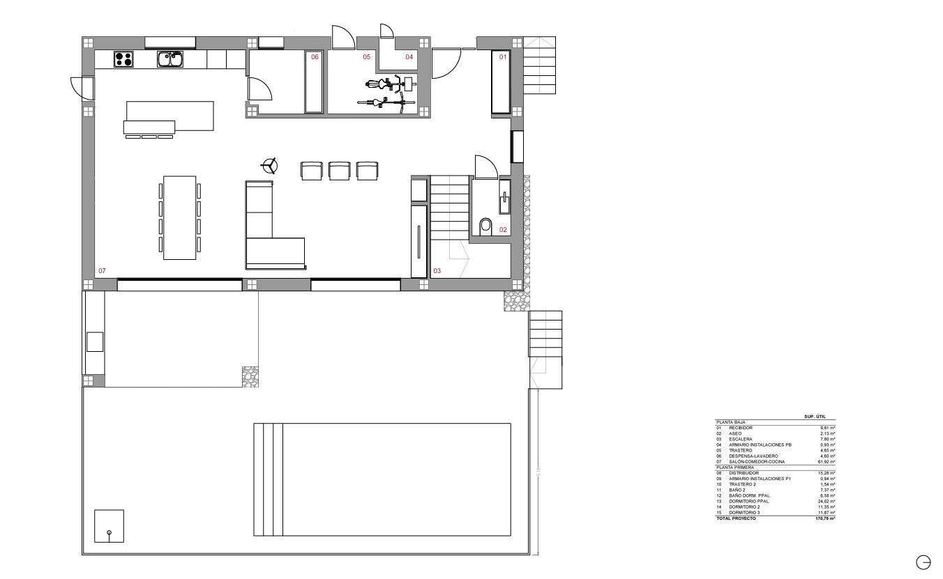
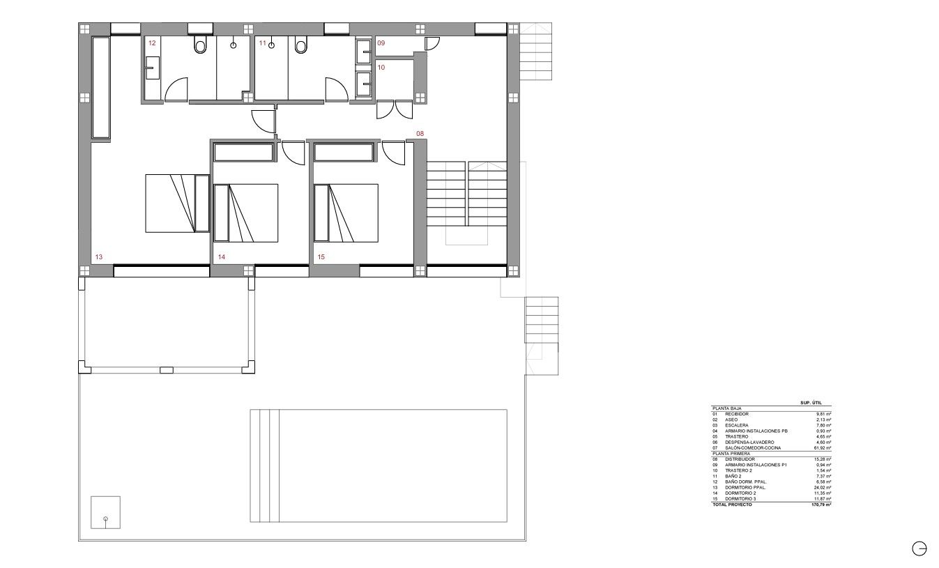
Located in the idyllic village of Alcalalí, this new build project has been granted planning permission. With a planned built area of 211 m2 on a generous plot of 1,021 m2, this project offers the opportunity to build a beautiful Ibiza-style villa in the peaceful, natural surroundings of the Jalón Valley.~~The project envisages a villa that will be built over two floors. On the ground floor, a spacious living-dining room is planned with an open kitchen equipped with a cooking island, complemented by a pantry, storage space and a guest toilet. The upper floor is designed with three comfortable bedrooms and two stylishly designed bathrooms that combine functionality and aesthetics, one of which is en-suite. The layout of the project has been carefully designed to ensure optimal use of space and to create a natural flow between the different living areas.~~In addition, the private garden has been designed to allow you to enjoy the outdoors and nature in complete privacy, as well as two terraces where you can experience the Mediterranean climate all year round.~~There is also an 8 x 4 metre swimming pool, ideal for cooling off during the hot summer months. The outdoor areas will consist of both an open terrace and a covered terrace, so there is always a choice between sun and shade. The plot will be fully fenced, ensuring security and peace of mind, while good connections to nearby main roads guarantee easy access to local amenities and attractions.~~The villa will be equipped with air conditioning for heating and cooling via air ducts, creating a pleasant indoor climate in every room, regardless of the season. Double glazing, automatic shutters in the bedrooms and the provision of parking and storage space contribute to additional living comfort.~~This project represents not only the realisation of a home, but a lifestyle in which tranquillity, comfort and modern luxury come together in charming Alcalalí. With its contemporary architecture and thoughtful amenities, this project is an invitation to enjoy an exceptional living environment every day, where time seems to stand still.
As a buyer you do not pay any commission with us, so make use of our more than 10 years of experience as a purchasing agent! Dream Properties International is a certified real estate agent, more information via this link. We have helped many customers over the years, check out our reviews here.
Details
-
Property ID DP-55-4599ALC/10535
-
Price €765.000
-
Property Size 419 m²
-
Land Area 1021 m²
-
Bedrooms 3
-
Bathrooms 2
-
Property Status New Build
-
Property Type Villa
Approximate Location
Maps are for representative purposes only and do not provide an exact location. They indicate the nearest town to which the property is located. For full details, please enquire using the form provided.
Similar Listings
Similar Listings
- Dream Properties
Contact me













