PROPERTY SEARCH
- Land
- Property Type
- 889 m²
- Land Area
Description
Ref: DP-77-AVS 57504
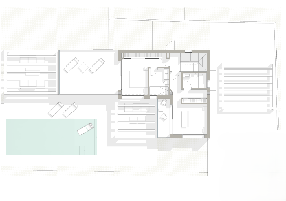
Plot for Sale in Pinosol, Jávea – APPROVED LICENCE for 3-bedroom villa with option to extend to 4 bedrooms.
Flat, sunny, east/west-orientated 889 m² plot with a licence already approved to build a modern 3-bedroom villa, situated in Pinosol on a quiet road, just a 3-minute drive from the sandy Arenal beach in Jávea on the Costa Blanca. There is no need to wait for Town Hall approvals, as the licence has already been granted and the project is ready to go. Applications for water, mains drainage, and electricity connections are already in process. As the plot is flat, fenced on three sides, and has a pedestrianised frontage, the cost to initiate construction is minimal.
The plot is not tied to a specific builder, giving you complete freedom of choice. We can recommend excellent local builders if required. The current licence allows for the construction of a modern, two-storey 177 m² villa with three bedrooms, all with en-suite bathrooms, an open-plan living/dining/kitchen area, a utility room, a ground-floor cloakroom, and a machine room. Plans are also available to extend the project with the addition of a sótano (lower level) to create a fourth bedroom, bathroom, and gym/cinema room, subject to an easy approval process with the Town Hall. Outside, there are open terraces leading to a low-maintenance Mediterranean garden with a 10 x 4 m swimming pool and a carport for two cars.
The photos show that the villa will enjoy stunning views of the Montgó and is nestled within a quiet, safe residential area within walking distance of amenities. Pinosol is one of the most popular residential areas in Jávea due to its wide, well-maintained streets, nearby restaurants, and easy cycle or drive access to the Arenal with its wonderful sunny beach and abundant amenities.
Being home to the best international schools on the Costa Blanca and benefiting from one of the healthiest microclimates in Spain, Jávea is the perfect location for families seeking permanent living or for discerning buyers looking for a luxury holiday home. The price of the plot is very attractive, as the vendor has already paid most of the planning costs and taxes and can provide a valid licence for immediate construction. This plot will not stay on the market for long, so please contact us for more information or to book a viewing.
As a buyer you do not pay any commission with us, so make use of our more than 10 years of experience as a purchasing agent! Dream Properties International is a certified real estate agent, more information via this link. We have helped many customers over the years, check out our reviews here.
Details
-
Property ID DP-77-AVS 57504
-
Price €340.000
-
Land Area 889 m²
-
Property Status Resale
-
Property Type Land
Approximate Location
Maps are for representative purposes only and do not provide an exact location. They indicate the nearest town to which the property is located. For full details, please enquire using the form provided.
Similar Listings
Similar Listings
- Dream Properties
Contact me












