PROPERTY SEARCH
- Finca
- Property Type
- 3
- Bedrooms
- 1
- Bathroom
- 247 m²
- Area Size
- 36500 m²
- Land Area
Description
Ref: DP-52-F5224363
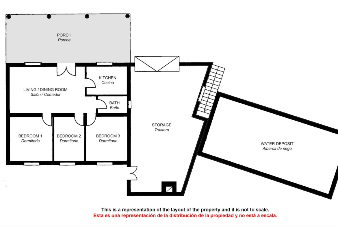
Beautiful finca for sale in Guaro, set on a partially fenced 36,500 m² plot—perfect for those seeking peace, open countryside, and the freedom of expansive land. The property includes a main house, a large storage building, a covered porch, a swimming pool, and water storage, along with areas suitable for cultivating almond and olive trees.
The house is arranged on a single level and features a roof terrace accessible via exterior stairs. Inside, the layout includes a living-dining room, kitchen, bathroom, two bedrooms, plus a third room currently used for storage, along with an additional internal storage room.
Outside, the finca offers a large independent storage room with access from both inside and outside the house, a covered porch ideal for outdoor living, a 50 m² swimming pool, and a 24 m² water deposit.
Access to the property is via a dirt road with some irregularities, located within the private path of the estate.
Utilities include well water and town water.
This finca offers comfort, privacy, and a strong connection to nature—ideal as a summer retreat, an investment opportunity, or an agricultural project.
Interested? Contact us – from our office in Moraira we will be happy to arrange a viewing for you!
As a buyer you do not pay any commission with us, so make use of our more than 10 years of experience as a purchasing agent! Dream Properties International is a certified real estate agent, more information via this link. We have helped many customers over the years, check out our reviews here.
Details
-
Property ID DP-52-F5224363
-
Price €330.000
-
Property Size 247 m²
-
Land Area 36500 m²
-
Bedrooms 3
-
Bathroom 1
-
Property Status Resale
-
Property Type Finca
Approximate Location
Maps are for representative purposes only and do not provide an exact location. They indicate the nearest town to which the property is located. For full details, please enquire using the form provided.
Similar Listings
Finca for sale in Casarabonela
DP-26-6280 Casarabonela, Málaga- Beds: 6
- Baths: 6
- 349 m²
- 3279 m²
- Finca
Similar Listings
Finca for sale in Casarabonela
DP-26-6280 Casarabonela, Málaga- Beds: 6
- Baths: 6
- 349 m²
- 3279 m²
- Finca
- Dream Properties
Contact me










































